ИЗГОТОВЛЕНИЕ ПО ТЗ ЗАКАЗЧИКА.
Подробнее
Краткие технические характеристики
Мощность 340кВт (3 группы мощности)
Маркировка взрывозащиты 1Ex eb IIC T1 Gb X
Режим работы:
Температура на входе: +5C
Температура на вsходе: +310C
Расход азота 1900...3000 нм3/ч
Материал изготовления:
Воздуховод Сталь 20,
Связка ТЭН 12Х18Н10Т,
Коробка Углеродистая сталь.
Мощность 340кВт (3 группы мощности)
Маркировка взрывозащиты 1Ex eb IIC T1 Gb X
Режим работы:
Температура на входе: +5C
Температура на вsходе: +310C
Расход азота 1900...3000 нм3/ч
Материал изготовления:
Воздуховод Сталь 20,
Связка ТЭН 12Х18Н10Т,
Коробка Углеродистая сталь.
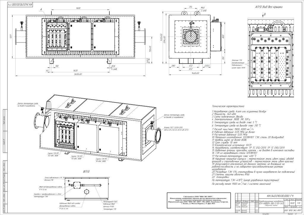
Взрывозащищенный канальный нагреватель азота EEX-AIRBOX-380-3-50-340 мощностью 340 кВт.
В рамках контакта с с предприятием группы "ЛУКОЙЛ" были произведены и отгружены два взрывозащищенных канальных нагревателя азота. Нагреватели работают в составе воздухоразделительной установки производства винилацетата.
Конструкция канального нагревателя EEX-AIRBOX-380-3-50-340.
Данный электронагреватель состоит их трех последовательно расположенных групп (кассет по 132, 113, 95кВт), встроенных в воздуховод с конусными переходами под присоединительный фланец вход / выход 300-11-1-2-В. Нагреваемая среда (азот) проходя через каждую группу последовательно нагревается до температуры +310С и поступает в ВРУ Заказчика. Для контроля температуры азота на входе и выходе на патрубках установлены термопары с выходным сигналом 4..20мА. Датчики температуры нагревательных элементов каждой группы выводится в промежуточную клеммную коробку (установлены на каждом шкафу группы). Нагреватель ремонтопригоден (каждую группу можно демонтировать из корпуса воздуховода для замены ТЭН).
Регулирование мощности установки происходит из АСУТП Заказчика посредство тиристорного шкафа управления.

В рамках контакта с с предприятием группы "ЛУКОЙЛ" были произведены и отгружены два взрывозащищенных канальных нагревателя азота. Нагреватели работают в составе воздухоразделительной установки производства винилацетата.
Конструкция канального нагревателя EEX-AIRBOX-380-3-50-340.
Данный электронагреватель состоит их трех последовательно расположенных групп (кассет по 132, 113, 95кВт), встроенных в воздуховод с конусными переходами под присоединительный фланец вход / выход 300-11-1-2-В. Нагреваемая среда (азот) проходя через каждую группу последовательно нагревается до температуры +310С и поступает в ВРУ Заказчика. Для контроля температуры азота на входе и выходе на патрубках установлены термопары с выходным сигналом 4..20мА. Датчики температуры нагревательных элементов каждой группы выводится в промежуточную клеммную коробку (установлены на каждом шкафу группы). Нагреватель ремонтопригоден (каждую группу можно демонтировать из корпуса воздуховода для замены ТЭН).
Регулирование мощности установки происходит из АСУТП Заказчика посредство тиристорного шкафа управления.
