ИЗГОТОВЛЕНИЕ ПО ТЗ ЗАКАЗЧИКА.
Подробнее
Краткие технические характеристики
Мощность 100кВт (3 группы по 33,3кВт)
Оребренные нагревательные элементы
Маркировка взрывозащиты 1Ex db IIC T1 Gb X
Режим работы:
Рециркуляция (замкнутый контур) до + 140С,
Расход воздуха 6 000 нм3/ч
Материал изготовления:
Воздуховод Оцинкованная сталь,
Связка ТЭН 12Х18Н10Т,
Коробка 09Г2С.
Мощность 100кВт (3 группы по 33,3кВт)
Оребренные нагревательные элементы
Маркировка взрывозащиты 1Ex db IIC T1 Gb X
Режим работы:
Рециркуляция (замкнутый контур) до + 140С,
Расход воздуха 6 000 нм3/ч
Материал изготовления:
Воздуховод Оцинкованная сталь,
Связка ТЭН 12Х18Н10Т,
Коробка 09Г2С.
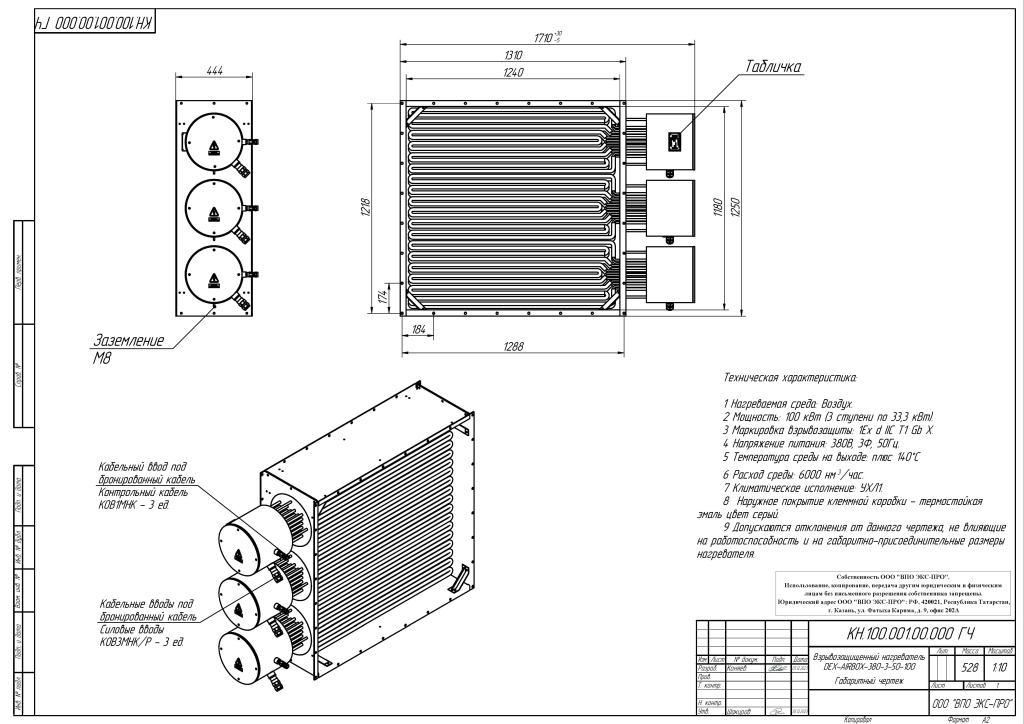
Взрывозащищенный канальный нагреватель воздуха DEX-AIRBOX-380-3-50-100 мощностью 100 кВт.
В рамках контакта с с предприятием производящим вентиляционное оборудование были произведены и отгружены два взрывозащищенных канальных нагревателя. Нагреватели работают в составе приточных вентиляционных установок.
Конструкция канального нагревателя DEX-AIRBOX-380-3-50-100.
ТЭНы электронагревателя равномерно расключены в три групп мощности (3х33,3кВт) в три раздельные коробки типа Exd.
Нагревательные элементы выполнены с оребрением из стальной ленты (увеличение теплоотдачи).
Жесткий воздуховод изготовлен из листа оцинкованной стали толщиной 4мм. Для контроля температуры ТЭН (каждой группы), установлены механические термостаты в выходом сухого контакта на шкаф Заказчика.
Воздух по замкнутому контуру проходя через каждую группу последовательно нагревается до температуры +140С. Для защиты от перегрева клеммных коробок, между воздуховодом и коробками установлены промежуточные трубки.
Регулирование мощности установки происходит из АСУТП Заказчика посредство тиристорного шкафа управления.

Дополнительная комплектация
- Датчик перепада давления,
- Датчик температуры нагреваемой среды с выходом 4..20мА,
- Воздуховоды / переходы на вентиляционные каналы Заказчика.
В рамках контакта с с предприятием производящим вентиляционное оборудование были произведены и отгружены два взрывозащищенных канальных нагревателя. Нагреватели работают в составе приточных вентиляционных установок.
Конструкция канального нагревателя DEX-AIRBOX-380-3-50-100.
ТЭНы электронагревателя равномерно расключены в три групп мощности (3х33,3кВт) в три раздельные коробки типа Exd.
Нагревательные элементы выполнены с оребрением из стальной ленты (увеличение теплоотдачи).
Жесткий воздуховод изготовлен из листа оцинкованной стали толщиной 4мм. Для контроля температуры ТЭН (каждой группы), установлены механические термостаты в выходом сухого контакта на шкаф Заказчика.
Воздух по замкнутому контуру проходя через каждую группу последовательно нагревается до температуры +140С. Для защиты от перегрева клеммных коробок, между воздуховодом и коробками установлены промежуточные трубки.
Регулирование мощности установки происходит из АСУТП Заказчика посредство тиристорного шкафа управления.

Дополнительная комплектация
- Датчик перепада давления,
- Датчик температуры нагреваемой среды с выходом 4..20мА,
- Воздуховоды / переходы на вентиляционные каналы Заказчика.