ИЗГОТОВЛЕНИЕ ПО ТЗ ЗАКАЗЧИКА.
Подробнее
Краткие технические характеристики
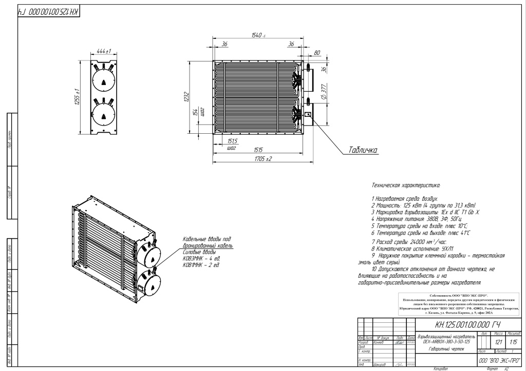
Мощность 125кВт (4 группы по 31,3кВт)
Оребренные нагревательные элементы
Маркировка взрывозащиты 1Ex db IIC T1 Gb X
Режим работы:
Температура среды на входе: +10C,
Температура среды на выходе: +41C,
Расход воздуха 24 000 нм3/ч
Материал изготовления:
Воздуховод Оцинкованная сталь,
Связка ТЭН 12Х18Н10Т,
Коробка 09Г2С.
Мощность 125кВт (4 группы по 31,3кВт)
Оребренные нагревательные элементы
Маркировка взрывозащиты 1Ex db IIC T1 Gb X
Режим работы:
Температура среды на входе: +10C,
Температура среды на выходе: +41C,
Расход воздуха 24 000 нм3/ч
Материал изготовления:
Воздуховод Оцинкованная сталь,
Связка ТЭН 12Х18Н10Т,
Коробка 09Г2С.
Взрывозащищенный канальный нагреватель воздуха DEX-AIRBOX-380-3-50-125 мощностью 125 кВт.
В рамках контакта с с предприятием производящим вентиляционное оборудование был произведен и отгружен взрывозащищенный канальный нагреватель. Нагреватель работает в составе приточной вентиляционной установки.
Конструкция канального нагревателя DEX-AIRBOX-380-3-50-125.
ТЭНы электронагревателя равномерно расключены в четыре групп мощности (4х31,5кВт) в три раздельные коробки типа Exd.
Нагревательные элементы выполнены с оребрением из стальной ленты (увеличение теплоотдачи).
Жесткий воздуховод изготовлен из листа оцинкованной стали толщиной 4мм. Для контроля температуры ТЭН (каждой группы), установлены механические термостаты в выходом сухого контакта на шкаф Заказчика.
Регулирование мощности установки происходит из АСУТП Заказчика посредством тиристорного шкафа управления.

Дополнительная комплектация
- Датчик перепада давления,
- Датчик температуры нагреваемой среды с выходом 4..20мА,
- Воздуховоды / переходы на вентиляционные каналы Заказчика.
В рамках контакта с с предприятием производящим вентиляционное оборудование был произведен и отгружен взрывозащищенный канальный нагреватель. Нагреватель работает в составе приточной вентиляционной установки.
Конструкция канального нагревателя DEX-AIRBOX-380-3-50-125.
ТЭНы электронагревателя равномерно расключены в четыре групп мощности (4х31,5кВт) в три раздельные коробки типа Exd.
Нагревательные элементы выполнены с оребрением из стальной ленты (увеличение теплоотдачи).
Жесткий воздуховод изготовлен из листа оцинкованной стали толщиной 4мм. Для контроля температуры ТЭН (каждой группы), установлены механические термостаты в выходом сухого контакта на шкаф Заказчика.
Регулирование мощности установки происходит из АСУТП Заказчика посредством тиристорного шкафа управления.

Дополнительная комплектация
- Датчик перепада давления,
- Датчик температуры нагреваемой среды с выходом 4..20мА,
- Воздуховоды / переходы на вентиляционные каналы Заказчика.